| NIVEAU | PIÈCE | SURFACE |
Maison
BAUDREIX (64800)
- 113 m²
- 4 pièce(s)
- 3 chambre(s)
- 441 m²
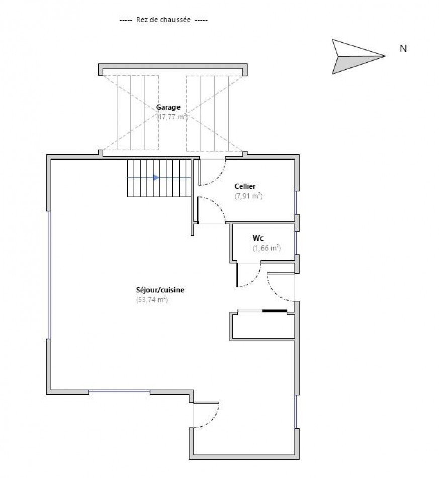
En fond d'impasse, venez découvrir cette maison récente, mitoyenne par le garage et prête à vivre.
Vous trouverez au rez-de-chaussée, un WC séparé, un cellier, une cuisine ouverte sur un salon-séjour lumineux donnant sur deux terrasses, une couverte et une seconde plein sud pour admirer le jardin avec vue sur les Pyrénées. A l'étage, un palier dessert trois belles chambres ainsi qu'une salle de bains et un WC séparé.
Le tout sur un terrain clos face aux montagnes.
Venez vous rendre compte par vous-même, nous vous attendons !!!
Référence : 1243JM
Votre contact Log'Ici Nay : Julien MARTIN au 06 31 59 49 83 ou au 05 33 74 05 05.
Notre barème d'honoraires
* Honoraires charge vendeur.
Ce bien ne figure plus au catalogue car il a été vendu.

Montant estimé des dépenses annuelles d'énergie pour un usage standard: entre 660,00€ et 910,00€ par an.
Prix moyen des énergies indexés au 01/01/2021 (abonnement compris)
cette annonce à un ami
Veuillez réessayer à nouveau
























