| NIVEAU | PIÈCE | SURFACE |
Maison
BAUDREIX (64800)
- 140 m²
- 6 pièce(s)
- 4 chambre(s)
- 1350 m²
Située dans un environnement paisible, cette spacieuse maison T6 allie confort, fonctionnalité et cadre de vie recherché grâce à sa parcelle de 1 350 m² offrant une belle vue sur les Pyrénées.
Au rez-de-chaussée, vous trouverez une entrée accueillante avec ses rangements, un salon-séjour lumineux, une cuisine séparée avec son cellier attenant, une chambre disposant de sa salle d’eau privative ainsi qu’un WC indépendant.
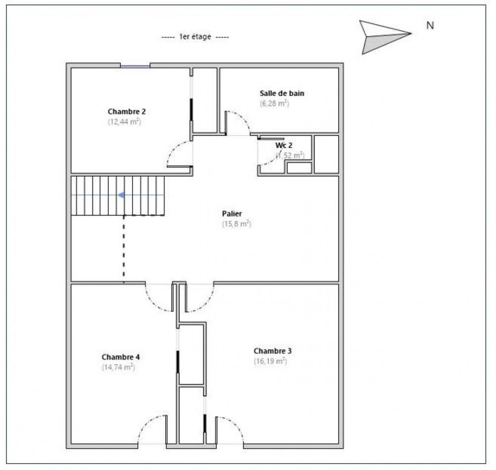
L’étage s’ouvre sur une mezzanine qui peut être aménagée en bureau ou en espace détente. Trois chambres confortables, une salle de bain familiale et un WC séparé complètent ce niveau.
À l’extérieur, un garage et un carport attenant viennent renforcer la praticité de cette maison, tout en laissant place à un vaste terrain de 1 350 m² idéal pour profiter des beaux jours et de la vue dégagée sur la chaîne des Pyrénées.
Après un rafraichissement, cette maison, à la fois familiale et lumineuse, séduira les amateurs d’espace et de calme, à la recherche d’un cadre de vie agréable.
Référence : 1400JM
Julien MARTIN se charge de la vente de ce bien : vous pouvez le contacter au 06 31 59 49 83 ou au 05 33 74 05 05.
Notre barème d'honoraires
* Honoraires charge vendeur.

Montant estimé des dépenses annuelles d'énergie pour un usage standard: entre 1 720,00€ et 2 370,00€ par an.Prix moyens des énergies indexés sur les années 2021, 2022 et 2023 (abonnement compris)
cette annonce à un ami
Veuillez réessayer à nouveau








































