| NIVEAU | PIÈCE | SURFACE |
Maison
SAINT CASTIN (64160)
- 137 m²
- 6 pièce(s)
- 5 chambre(s)
- 2000 m²
LOG’ICI Morlaàs vous présente cette belle maison familiale de 6 pièces, offrant 137 m² habitables avec un sous-sol complet, le tout sur un terrain arboré de 2000 m² clotûré.
Située à seulement 2 minutes en voiture des commodités de Montardon, cette charmante maison allie confort, espace et cadre de vie paisible, idéale pour une famille. D'une surface de 137 m² + un sous-sol complet
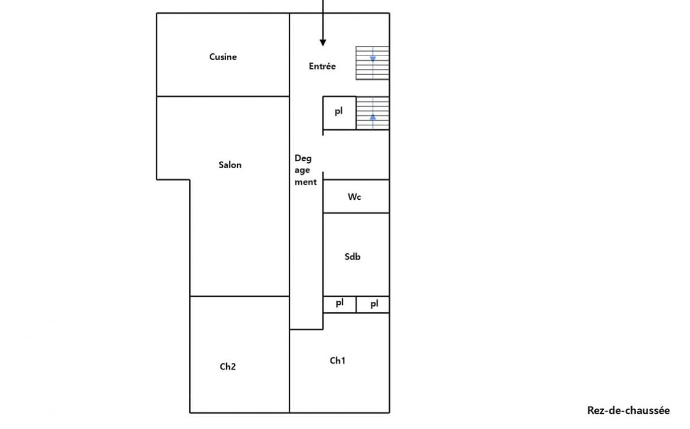
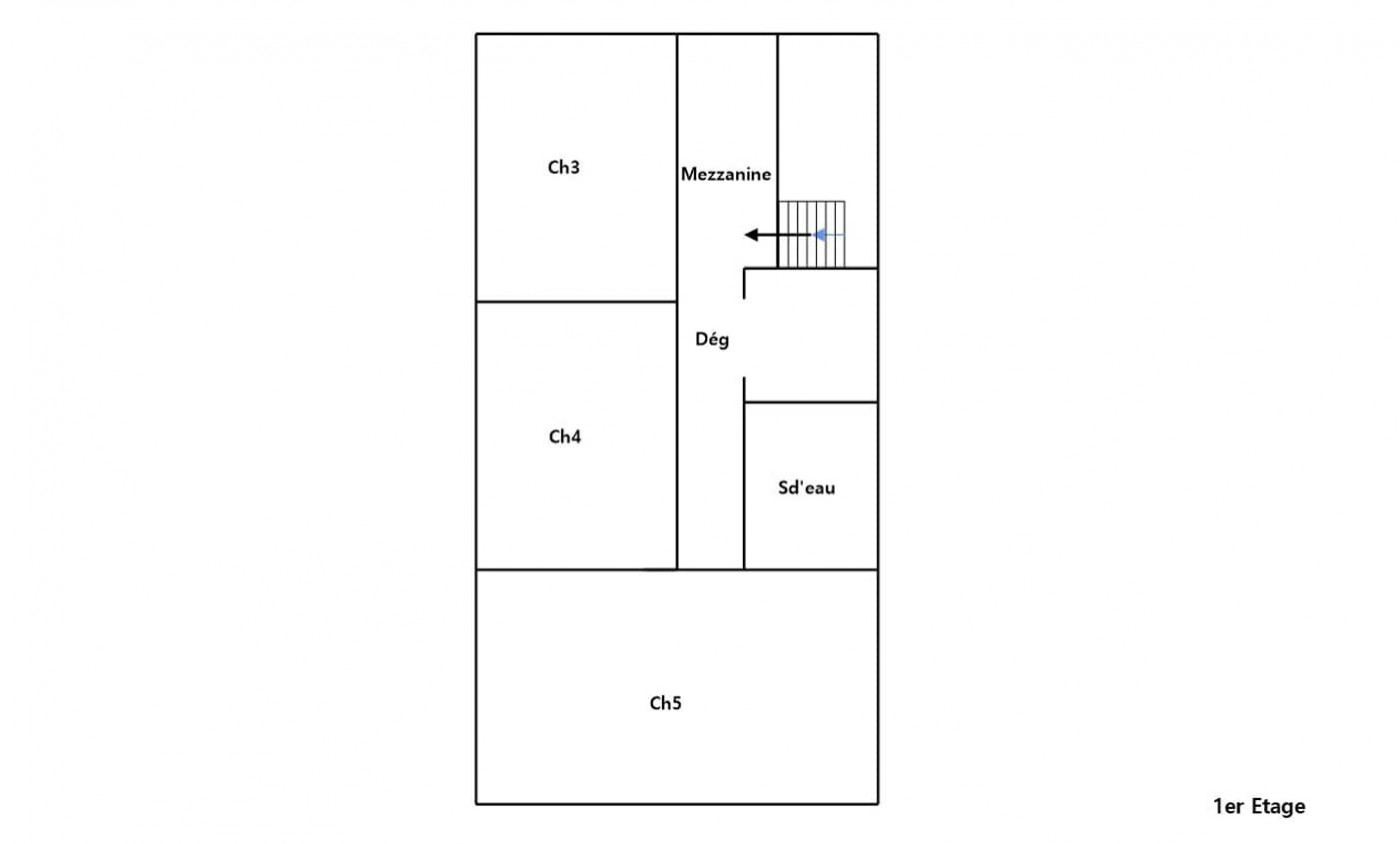
Elle se compose de cinq chambres, offrant ainsi de nombreuses possibilités d’agencement : espace parental, chambres d’enfants, bureau ou encore chambre d’amis. La cuisine indépendante permet de cuisiner en toute tranquillité, tandis que le vaste séjour lumineux avec cheminée constitue un lieu de vie chaleureux et convivial.
Côté confort, la maison dispose d’une salle de bains, d’une salle d’eau, de deux WC indépendants et d’un cellier pour optimiser l’organisation et le rangement.
Son sous-sol total, avec une belle hauteur sous plafond, est un véritable atout : il peut facilement être transformé selon vos besoins en salle de sport, atelier, espace de loisirs ou logement indépendant.
À l’extérieur, le terrain arboré d’environ 2000 m² offre un bel espace de détente pour les repas d’été, les jeux en plein air ou tout simplement profiter de la nature dans un environnement calme.
Cette maison vous séduira par ses volumes généreux, son fort potentiel d’aménagement et son cadre de vie privilégié.
Prix : 297 000 € - Référence annonce : 12810JB - LOG'ICI Morlaàs : 05.59.21.22.00 ou Julie BARRERE : 07.84.11.98.39.
Notre barème d'honoraires
* Honoraires charge vendeur.

Montant estimé des dépenses annuelles d'énergie pour un usage standard: entre 1 870,00€ et 2 560,00€ par an.
Prix moyen des énergies indexés au 01/01/2021 (abonnement compris)
cette annonce à un ami
Veuillez réessayer à nouveau


































