0

Grange à réhabiliter 131 m² – Jardin – Stationnement – PC purgé

Billère (64140)
Réf : SEVMA300006807
L’agence Log’ici vous propose une nouvelle opportunité rare sur le secteur !
Vous êtes à la recherche d’une grange à aménager ? Ne cherchez plus, ce bien est fait pour vous.
Au cœur de Billère, à proximité immédiate de toutes les commodités découvrez l’opération « Le Clos Mohédan », développée autour d’un ancien édifice du XVIIIe siècle, classé « bâtiment remarquable ».
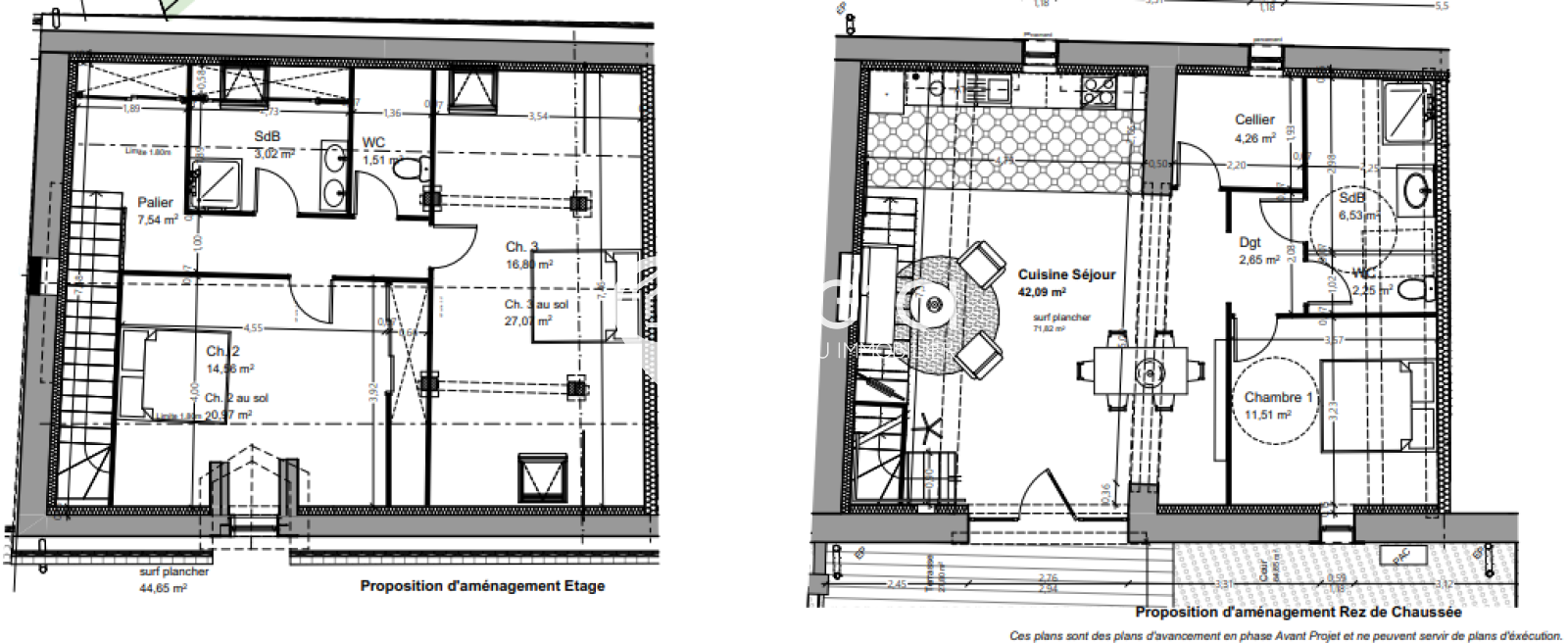
Nous vous proposons 4 plateaux de 131 à 137 m², avec extension possible + de 30m² livrés bruts avec permis de construire pour maisons T4 purgé de tout recours.
Chaque lot a été pensé comme un bien autonome et unique, avec sa propre personnalité, et bénéficie d’un jardin privatif ainsi que de deux places de stationnement.
Ce projet conviendra à des particuliers souhaitant créer un lieu de vie sur mesure dans un environnement recherché et à des professionnels (artisan, marchand de biens...) recherchant une opération prête à démarrer.
• Plateau brut en pleine propriété
• PC purgé
• Division actée
• Jardin + stationnement
Actuellement disponibles à partir de 154 000 € pour le lot D - Le Pigeonnier - Autres prix disponibles sur demande.
Contact unique:
Emmanuel SOLON
LOG'ICI
Tél: 0683990503
Mail: serrescastet@logici-immobilier.com
découvrir le bien
Prix du bien 154 000 €
Pièce(s) 4
Chambre(s) 3

Caractéristiques du bien

Caractéristiques Valeurs
Code postal 64140
Surface habitable (m²) 131 m²
surface terrain 203 m²
Nombre de chambre(s) 3
Nombre de pièces 4
Nombre de niveaux 1

Infos financières

Caractéristiques Valeurs
Prix de vente honoraires TTC inclus 154 000 €

Bilans énergétiques

DPE GES
Ce bien vous intéresse ?
Fieldset par défaut
Fieldset par défaut
Validation

* Champs obligatoires

Contacter l'agence
Validation
Les informations recueillies sur ce formulaire sont enregistrées dans un fichier informatisé par La Boite Immo agissant comme Sous-traitant du traitement pour la gestion de la clientèle/prospects de l'Agence / du Réseau qui reste Responsable du Traitement de vos Données personnelles. La base légale du traitement repose sur l'intérêt légitime de l'Agence / du Réseau. Elles sont conservées jusqu'à demande de suppression et sont destinées à l'Agence / au Réseau. Conformément à la loi « informatique et libertés », vous disposez des droits d’accès, de rectification, d’effacement, d’opposition, de limitation et de portabilité de vos données. Vous pouvez retirer votre consentement à tout moment en contactant directement l’Agence / Le Réseau. Consultez le site https://cnil.fr/fr pour plus d’informations sur vos droits. Si vous estimez, après avoir contacté l'Agence / le Réseau, que vos droits « Informatique et Libertés » ne sont pas respectés, vous pouvez adresser une réclamation à la CNIL. Nous vous informons de l’existence de la liste d'opposition au démarchage téléphonique « Bloctel », sur laquelle vous pouvez vous inscrire ici : https://www.bloctel.gouv.fr Dans le cadre de la protection des Données personnelles, nous vous invitons à ne pas inscrire de Données sensibles dans le champ de saisie libre.
Ce site est protégé par reCAPTCHA, les Politiques de Confidentialité et les Conditions d'Utilisation de Google s'appliquent.