0

Grange à aménager en maison T4 avec extérieur – Permis purgé

Billère (64140)
Réf : SEVMA300006866
Située dans le quartier du Mohédan à Billère, entre la Halle et Intermarché, à proximité immédiate des commerces et des écoles (tout à pied).
 
Projet de résidence principale pour particuliers ayant l’expérience des travaux, investisseurs ou artisans.
 
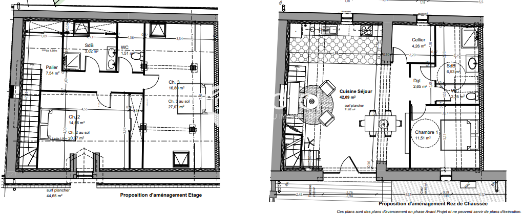
Grange classée bâtiment remarquable de 131 m² en R+1 à aménager en maison de ville de type T4.
 
Un permis de construire a été déposé pour une rénovation comprenant notamment une pièce de vie de 42 m², 3 belles chambres et un espace extérieur. La vente sera réalisée après obtention et purge de tout recours.
 
Viabilisation à prévoir (réseaux en bordure).
 
Bâti mitoyen en centre-bourg.
 
Dossier de permis de construire disponible.
 
Visuels d’aménagement 3D indicatifs.
 

Autres lots disponibles avec prestations plus qualitatives (jardin, exposition, extension possible, mitoyenneté).


Contact unique:

Emmanuel SOLON

LOG'ICI

Tél: 0683990503

Mail: serrescastet@logici-immobilier.com

Prix du bien 139 000 €
Pièce(s) 4
Chambre(s) 3

Caractéristiques du bien

Caractéristiques Valeurs
Code postal 64140
Surface habitable (m²) 131 m²
surface terrain 203 m²
Nombre de chambre(s) 3
Nombre de pièces 4
Nombre de niveaux 1

Infos financières

Caractéristiques Valeurs
Prix de vente honoraires TTC inclus 139 000 €

Bilans énergétiques

DPE GES
Ce bien vous intéresse ?
Fieldset par défaut
Fieldset par défaut
Validation

* Champs obligatoires

Contacter l'agence
Validation
Les informations recueillies sur ce formulaire sont enregistrées dans un fichier informatisé par La Boite Immo agissant comme Sous-traitant du traitement pour la gestion de la clientèle/prospects de l'Agence / du Réseau qui reste Responsable du Traitement de vos Données personnelles. La base légale du traitement repose sur l'intérêt légitime de l'Agence / du Réseau. Elles sont conservées jusqu'à demande de suppression et sont destinées à l'Agence / au Réseau. Conformément à la loi « informatique et libertés », vous disposez des droits d’accès, de rectification, d’effacement, d’opposition, de limitation et de portabilité de vos données. Vous pouvez retirer votre consentement à tout moment en contactant directement l’Agence / Le Réseau. Consultez le site https://cnil.fr/fr pour plus d’informations sur vos droits. Si vous estimez, après avoir contacté l'Agence / le Réseau, que vos droits « Informatique et Libertés » ne sont pas respectés, vous pouvez adresser une réclamation à la CNIL. Nous vous informons de l’existence de la liste d'opposition au démarchage téléphonique « Bloctel », sur laquelle vous pouvez vous inscrire ici : https://www.bloctel.gouv.fr Dans le cadre de la protection des Données personnelles, nous vous invitons à ne pas inscrire de Données sensibles dans le champ de saisie libre.
Ce site est protégé par reCAPTCHA, les Politiques de Confidentialité et les Conditions d'Utilisation de Google s'appliquent.