0

MIREPEIX - Vente maison récente T5 de plain-pied avec piscine

Mirepeix (64800)
Réf : 1431JM

Très belle maison de 2008, parfaitement entretenue, offrant un cadre de vie confortable et agréable.

Elle se compose d’une grande pièce de vie lumineuse ouverte sur la cuisine, idéale pour partager de beaux moments en famille ou entre amis. Pour le confort au quotidien, vous profiterez d’une climatisation réversible ainsi que d’un poêle à bois mais aussi d'un cellier buanderie aménagé, très pratique

L’espace nuit propose 4 chambres avec placards (dont une avec dressing), une salle de bains avec double vasque et douche et un WC indépendant.

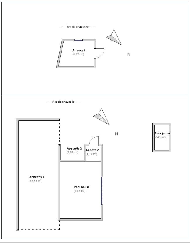
À l’extérieur, le bien dispose de très beaux aménagements avec un jardin clos, paysagé et soigneusement entretenu, deux grandes terrasses, une piscine au sel chauffée, un pool house fermé, un coin barbecue et un atelier parfait pour le stockage ou le bricolage.

Un carport 2 voitures vient compléter l’ensemble.

Un bien soigné, fonctionnel et chaleureux, idéal pour une famille à la recherche d’une maison où il ne reste plus qu’à poser ses valises.

Référence : 1431JM

Julien MARTIN se charge de la vente de ce bien : vous pouvez le contacter au 06 31 59 49 83 ou au 05 33 74 05 05.


Les informations sur les risques auxquels ce bien est exposé sont disponibles sur le site Géorisques
découvrir le bien
Prix du bien 305 000 €
Pièce(s) 5
Chambre(s) 4

Caractéristiques du bien

Caractéristiques Valeurs
Code postal 64800
Surface habitable (m²) 116,55 m²
surface terrain 961 m²
Surface loi Carrez (m²) 116,55 m²
Nombre de chambre(s) 4
Nombre de pièces 5
Vue Dégagée Pyrénées
Nb de salle de bains 1
Cuisine Américaine
Type de cuisine Equipée
Mode de chauffage Climatisation, Granules
Type de chauffage Air pulsé, Poêle
Format de chauffage Individuel, Individuel
Interphone OUI
Visiophone NON
Balcon NON
Loggia NON
Terrasse OUI
Sous/sol SANS
Cave NON
Nombre de parking 2
Exposition Est
Année de construction 2007
Terrain piscinable OUI
Terrain arboré OUI
Terrain divisible NON

Infos financières

Caractéristiques Valeurs
Prix de vente 305 000 €
Les honoraires d'agence seront intégralement à la charge du vendeur  
Taxe foncière annuelle 1 178 €

Bilans énergétiques

DPE GES
Ce bien vous intéresse ?
Fieldset par défaut
Fieldset par défaut
Validation

* Champs obligatoires

Contacter l'agence
Validation
Les informations recueillies sur ce formulaire sont enregistrées dans un fichier informatisé par La Boite Immo agissant comme Sous-traitant du traitement pour la gestion de la clientèle/prospects de l'Agence / du Réseau qui reste Responsable du Traitement de vos Données personnelles. La base légale du traitement repose sur l'intérêt légitime de l'Agence / du Réseau. Elles sont conservées jusqu'à demande de suppression et sont destinées à l'Agence / au Réseau. Conformément à la loi « informatique et libertés », vous disposez des droits d’accès, de rectification, d’effacement, d’opposition, de limitation et de portabilité de vos données. Vous pouvez retirer votre consentement à tout moment en contactant directement l’Agence / Le Réseau. Consultez le site https://cnil.fr/fr pour plus d’informations sur vos droits. Si vous estimez, après avoir contacté l'Agence / le Réseau, que vos droits « Informatique et Libertés » ne sont pas respectés, vous pouvez adresser une réclamation à la CNIL. Nous vous informons de l’existence de la liste d'opposition au démarchage téléphonique « Bloctel », sur laquelle vous pouvez vous inscrire ici : https://www.bloctel.gouv.fr Dans le cadre de la protection des Données personnelles, nous vous invitons à ne pas inscrire de Données sensibles dans le champ de saisie libre.
Ce site est protégé par reCAPTCHA, les Politiques de Confidentialité et les Conditions d'Utilisation de Google s'appliquent.