0

MIREPEIX - Vente Maison T5 pleine de charme

Mirepeix (64800)
Réf : 1436JC

À Mirepeix, cette maison de village en pierre raconte une histoire simple et attachante. Derrière ses murs extérieurs d’origine, conservés avec soin, elle a été rénovée dans les années 1960 et a depuis toujours été parfaitement entretenue. Aujourd’hui, elle attend simplement d’être remise au goût du jour pour retrouver tout son éclat et accueillir une nouvelle vie de famille.

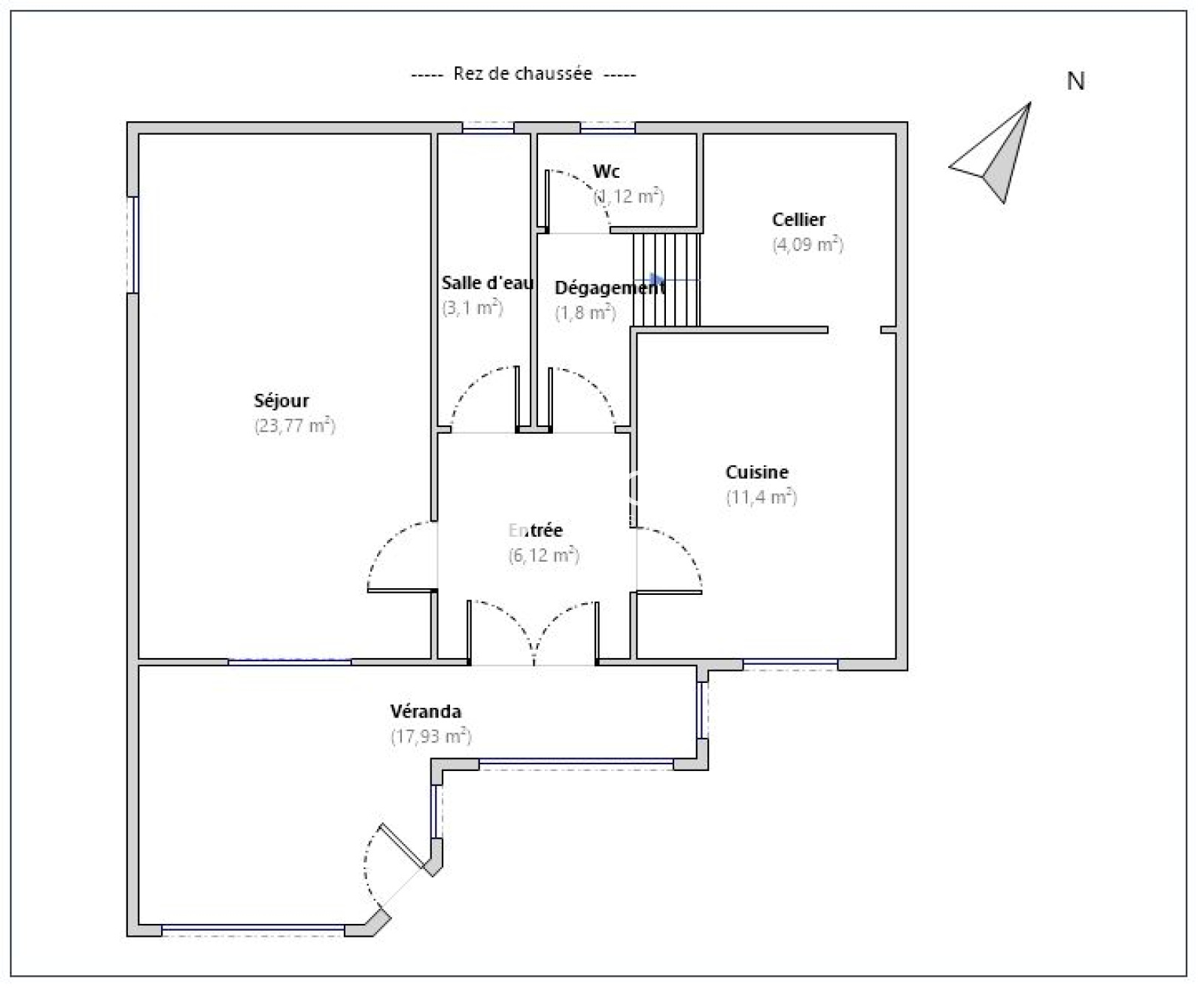
Dès l’entrée, on découvre une maison à l’atmosphère authentique : la cuisine, meublée et indépendante, ouvre la visite, suivie d’un salon et d’un séjour attenant qui composent un espace de vie convivial. Dans le prolongement, la véranda apporte une pièce supplémentaire particulièrement agréable, mise en valeur par ses belles pierres apparentes qui rappellent le charme du bâti ancien. Un dégagement dessert également une salle d’eau ainsi que des toilettes séparées au rez-de-chaussée.

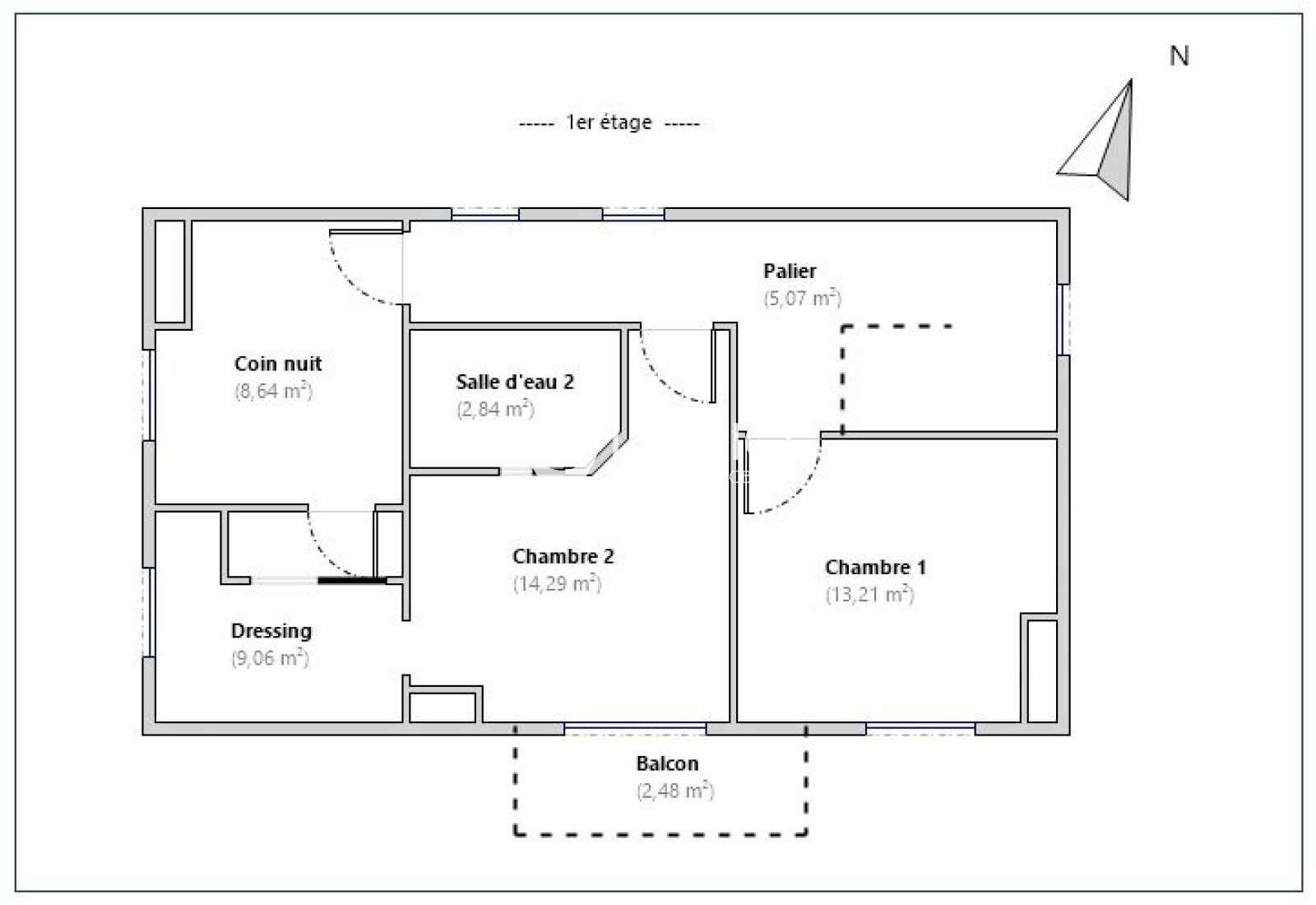
À l’étage, le coin nuit s’organise autour d’un couloir distribuant trois chambres. L’une d’elles propose un espace plus intime avec sa salle d’eau et son dressing privatifs, dans un esprit suite parentale. Ici encore, le cachet de la maison s’exprime pleinement à travers le beau plancher en bois resté en très bel état.

À l’extérieur, le jardin clos et joliment arboré de 460 m² prolonge naturellement la maison. C’est un espace agréable à vivre, propice aux jeux des enfants, aux repas dehors et aux moments plus calmes à l’abri des regards. Un cabanon de jardin permet de ranger facilement matériel et outillage. Le garage indépendant constitue un vrai confort au quotidien, et la petite dépendance offre un espace intéressant pour une activité libérale ou indépendante. Au-dessus du garage, le toit-terrasse avec barbecue réserve un supplément de charme, avec un agréable aperçu sur les Pyrénées pour profiter des beaux jours en toute tranquillité.

Ce bien atypique bénéficie en plus d’un emplacement particulièrement recherché : en bord de voie verte, à deux pas du centre de Nay et des commodités accessibles à pied, avec écoles, collège et lycée à proximité. Une adresse pratique, agréable et bien pensée pour une vie de famille.

Parfaitement entretenue, pleine de charme et de potentiel, cette maison ne demande qu’un rafraîchissement pour entamer une seconde vie. Une visite permettra d’en saisir toute l’âme et les possibilités.

Référence : 1436JC

Votre contact LOGICI NAY : Julie CAZAJOUS joignable au 06 46 63 32 73 ou au 05 33 74 05 05


Les informations sur les risques auxquels ce bien est exposé sont disponibles sur le site Géorisques
découvrir le bien
Prix du bien 222 000 €
Pièce(s) 5
Chambre(s) 3

Caractéristiques du bien

Caractéristiques Valeurs
Code postal 64800
Surface habitable (m²) 119,36 m²
surface terrain 460 m²
Surface loi Carrez (m²) 104,51 m²
Nombre de chambre(s) 3
Nombre de pièces 5
Nombre de niveaux 2
Vue Dégagée, jardin
Nb de salle d'eau 2
Cuisine Séparée
Type de cuisine SEMI-EQUIPEE
Mode de chauffage Electrique, Bois
Type de chauffage Convecteur, Cheminée
Format de chauffage Individuel, Individuel
Interphone NON
Visiophone NON
Balcon OUI
Loggia NON
Terrasse OUI
Sous/sol SANS
Nombre de garage 1
Cave NON
Nombre de parking 2
Exposition Sud
Année de construction 1900
Terrain piscinable OUI
Terrain arboré OUI
Terrain divisible NON

Infos financières

Caractéristiques Valeurs
Prix de vente 222 000 €
Les honoraires d'agence seront intégralement à la charge du vendeur  
Taxe foncière annuelle 936 €

Bilans énergétiques

DPE GES
Ce bien vous intéresse ?
Fieldset par défaut
Fieldset par défaut
Validation

* Champs obligatoires

Contacter l'agence
Validation
Les informations recueillies sur ce formulaire sont enregistrées dans un fichier informatisé par La Boite Immo agissant comme Sous-traitant du traitement pour la gestion de la clientèle/prospects de l'Agence / du Réseau qui reste Responsable du Traitement de vos Données personnelles. La base légale du traitement repose sur l'intérêt légitime de l'Agence / du Réseau. Elles sont conservées jusqu'à demande de suppression et sont destinées à l'Agence / au Réseau. Conformément à la loi « informatique et libertés », vous disposez des droits d’accès, de rectification, d’effacement, d’opposition, de limitation et de portabilité de vos données. Vous pouvez retirer votre consentement à tout moment en contactant directement l’Agence / Le Réseau. Consultez le site https://cnil.fr/fr pour plus d’informations sur vos droits. Si vous estimez, après avoir contacté l'Agence / le Réseau, que vos droits « Informatique et Libertés » ne sont pas respectés, vous pouvez adresser une réclamation à la CNIL. Nous vous informons de l’existence de la liste d'opposition au démarchage téléphonique « Bloctel », sur laquelle vous pouvez vous inscrire ici : https://www.bloctel.gouv.fr Dans le cadre de la protection des Données personnelles, nous vous invitons à ne pas inscrire de Données sensibles dans le champ de saisie libre.
Ce site est protégé par reCAPTCHA, les Politiques de Confidentialité et les Conditions d'Utilisation de Google s'appliquent.