0

ARROS DE NAY - Vente Maison T3 rénovée sur terrain clos de 575 m²

Arros-de-Nay (64800)
Réf : 1391JC

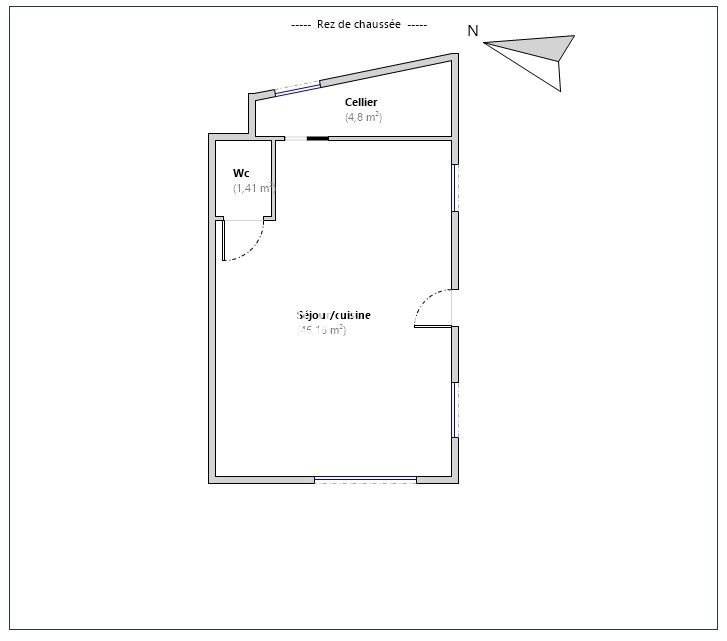
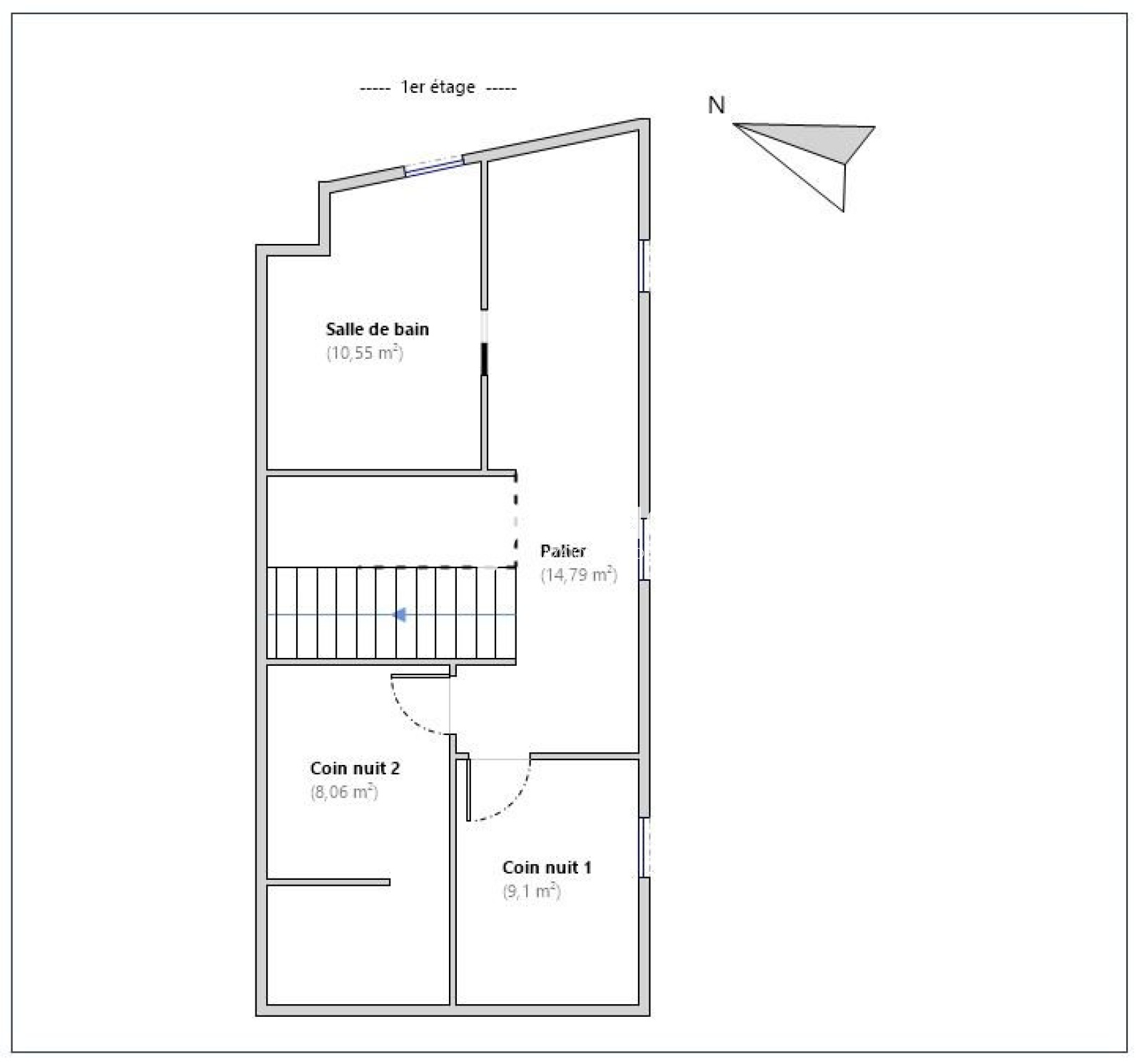
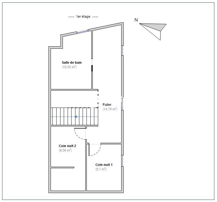
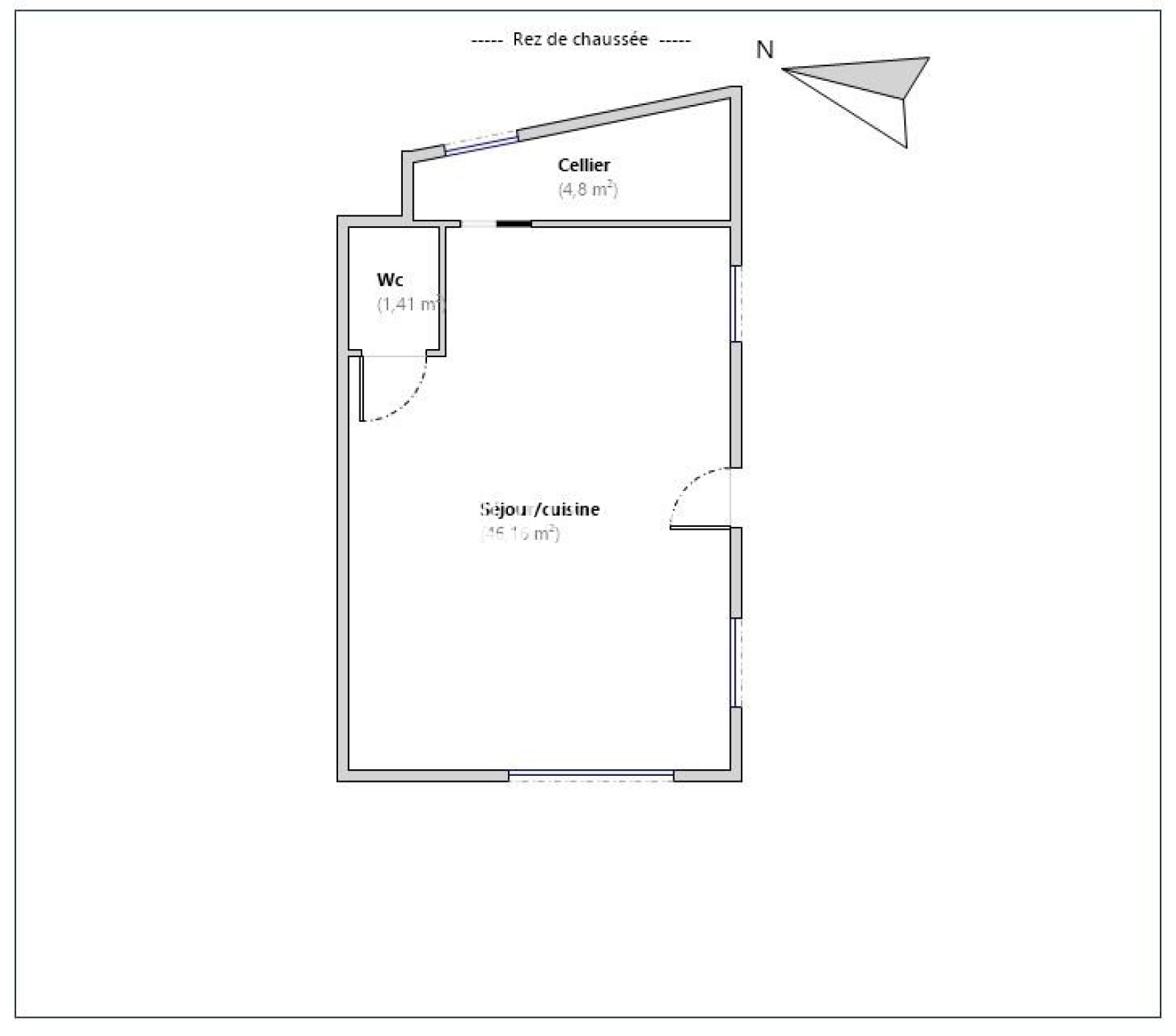
Située au cœur du charmant village d'Arros-de-Nay, cette authentique maison béarnaise en galets a été entièrement rénovée avec des matériaux de qualité, offrant un subtil mélange entre le charme de l'ancien et le confort du moderne. Dès l'entrée, vous serez séduit par son salon-séjour lumineux qui s'ouvre sur une cuisine flambant neuve, alliant fonctionnalité et esthétique. Attenant à la cuisine, un cellier apporte un espace de rangement pratique pour le quotidien. Un WC séparé complète ce niveau. La pièce de vie donne accès à une grande terrasse où vous pourrez profiter de moments conviviaux face à un jardin de 575 m², prête à être aménagée selon vos envies. À l'étage, une mezzanine distribue deux chambres, dont l'une dispose d'un dressing, ainsi qu'une grande salle de bains avec WC. L'ensemble de la maison est climatisé, vous assurant un confort optimal en toute saison. Habitable immédiatement et sans aucun travaux à prévoir, cette maison est idéale pour des primo-accédants ou toute personne en quête d'un bien alliant authenticité et modernité, dans un cadre de vie agréable et proche des commodités. Une opportunité rare à visiter sans attendre. Une vidéo de ce bien est disponible sur notre site www.logici-immobilier.com Référence : 1391JC Votre contact LOGICI NAY : Julie CAZAJOUS joignable au 06 46 63 32 73 ou au 05 33 74 05 05


Les informations sur les risques auxquels ce bien est exposé sont disponibles sur le site Géorisques
découvrir le bien
Prix du bien 212 000 €
Pièce(s) 3
Chambre(s) 2

Caractéristiques du bien

Caractéristiques Valeurs
Code postal 64800
Surface habitable (m²) 99,03 m²
surface terrain 575 m²
Surface loi Carrez (m²) 84,76 m²
Nombre de chambre(s) 2
Nombre de pièces 3
Nb de salle de bains 1
Type de cuisine Equipée
Mode de chauffage Climatisation
Type de chauffage Autre
Format de chauffage Individuel
Terrasse OUI
Année de construction 1900
Quartier NAY
Terrain Cloturé OUI
Raccordement eau OUI
Raccordement électricité OUI

Infos financières

Caractéristiques Valeurs
Prix de vente 212 000 €
Les honoraires d'agence seront intégralement à la charge du vendeur  
Taxe foncière annuelle 552 €

Bilans énergétiques

DPE GES
Ce bien vous intéresse ?
Fieldset par défaut
Fieldset par défaut
Validation

* Champs obligatoires

Contacter l'agence
Validation
Les informations recueillies sur ce formulaire sont enregistrées dans un fichier informatisé par La Boite Immo agissant comme Sous-traitant du traitement pour la gestion de la clientèle/prospects de l'Agence / du Réseau qui reste Responsable du Traitement de vos Données personnelles. La base légale du traitement repose sur l'intérêt légitime de l'Agence / du Réseau. Elles sont conservées jusqu'à demande de suppression et sont destinées à l'Agence / au Réseau. Conformément à la loi « informatique et libertés », vous disposez des droits d’accès, de rectification, d’effacement, d’opposition, de limitation et de portabilité de vos données. Vous pouvez retirer votre consentement à tout moment en contactant directement l’Agence / Le Réseau. Consultez le site https://cnil.fr/fr pour plus d’informations sur vos droits. Si vous estimez, après avoir contacté l'Agence / le Réseau, que vos droits « Informatique et Libertés » ne sont pas respectés, vous pouvez adresser une réclamation à la CNIL. Nous vous informons de l’existence de la liste d'opposition au démarchage téléphonique « Bloctel », sur laquelle vous pouvez vous inscrire ici : https://www.bloctel.gouv.fr Dans le cadre de la protection des Données personnelles, nous vous invitons à ne pas inscrire de Données sensibles dans le champ de saisie libre.
Ce site est protégé par reCAPTCHA, les Politiques de Confidentialité et les Conditions d'Utilisation de Google s'appliquent.