0

COARRAZE - Vente Appartement T4 en duplex

Coarraze (64800)
Réf : 1413FL

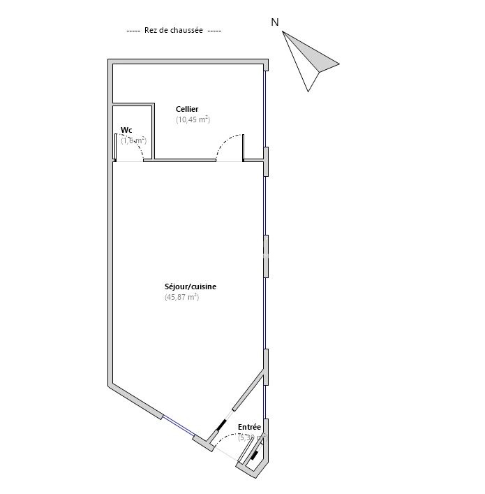
À Coarraze, dans un quotidien où l’on peut rejoindre écoles et commerces à pied, ce duplex offre une vie bien organisée au sein d’une petite copropriété de quatre lots. Dès l’entrée, on découvre une pièce de vie généreuse, un salon-séjour spacieux où l’on se projette facilement, ouvert sur une cuisine meublée et équipée, pensée pour partager les moments sans se couper du reste. Dans le prolongement, une buanderie apporte un vrai confort d’usage, et des toilettes séparées complètent ce niveau.

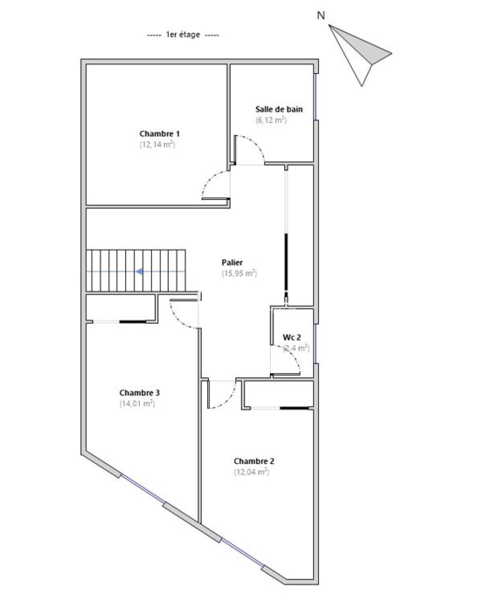
À l’étage, le palier dessert clairement l’espace nuit avec trois chambres, un vrai plus sur le marché local, ainsi qu’une salle de bain et un second WC séparé, appréciable au quotidien.

Côté pratique, l’appartement est vendu avec un carport permettant de stationner un véhicule, ainsi qu’un débarras pour conserver quelques affaires et optimiser le rangement.

Important à savoir, le bien est vendu avec un locataire en place, avec un bail en cours jusqu’en septembre 2028. Cette configuration en fait une opportunité particulièrement adaptée à un investisseur à la recherche d’un bien déjà occupé.

Pour plus d’informations et organiser une visite, contactez-moi.

Référence : 1413FL

Farah LAGES se charge de la vente de ce bien : vous pouvez la contacter au 06 32 90 78 00 ou au 05 33 74 05 05 Log'Ici Nay


Zone soumise à une obligation légale de débroussaillement.
Les informations sur les risques auxquels ce bien est exposé sont disponibles sur le site Géorisques
découvrir le bien
Prix du bien 96 000 €
Pièce(s) 4
Chambre(s) 3

Caractéristiques du bien

Caractéristiques Valeurs
Code postal 64800
Surface habitable (m²) 125,97 m²
Surface loi Carrez (m²) 123,61 m²
Nombre de chambre(s) 3
Nombre de pièces 4
Etage 1
Nombre de niveaux 2
Ascenseur NON
Nb de salle de bains 1
Cuisine Américaine
Mode de chauffage Gaz de ville
Type de chauffage TRAD_TYPE_CHAUFF_CHAUDIERE
Format de chauffage Individuel
Interphone NON
Visiophone NON
Balcon NON
Loggia NON
Terrasse NON
Murs mitoyens 3
Cave OUI
Nombre de parking 1
Surface cave (m²) 3.75
Exposition Ouest
Année de construction 1900
Quartier NAY

Infos financières

Caractéristiques Valeurs
Prix de vente 96 000 €
Les honoraires d'agence seront intégralement à la charge du vendeur  
Charges 20 €
Taxe foncière annuelle 935 €

Bilans énergétiques

DPE GES
Ce bien vous intéresse ?
Fieldset par défaut
Fieldset par défaut
Validation

* Champs obligatoires

Contacter l'agence
Validation
Les informations recueillies sur ce formulaire sont enregistrées dans un fichier informatisé par La Boite Immo agissant comme Sous-traitant du traitement pour la gestion de la clientèle/prospects de l'Agence / du Réseau qui reste Responsable du Traitement de vos Données personnelles. La base légale du traitement repose sur l'intérêt légitime de l'Agence / du Réseau. Elles sont conservées jusqu'à demande de suppression et sont destinées à l'Agence / au Réseau. Conformément à la loi « informatique et libertés », vous disposez des droits d’accès, de rectification, d’effacement, d’opposition, de limitation et de portabilité de vos données. Vous pouvez retirer votre consentement à tout moment en contactant directement l’Agence / Le Réseau. Consultez le site https://cnil.fr/fr pour plus d’informations sur vos droits. Si vous estimez, après avoir contacté l'Agence / le Réseau, que vos droits « Informatique et Libertés » ne sont pas respectés, vous pouvez adresser une réclamation à la CNIL. Nous vous informons de l’existence de la liste d'opposition au démarchage téléphonique « Bloctel », sur laquelle vous pouvez vous inscrire ici : https://www.bloctel.gouv.fr Dans le cadre de la protection des Données personnelles, nous vous invitons à ne pas inscrire de Données sensibles dans le champ de saisie libre.
Ce site est protégé par reCAPTCHA, les Politiques de Confidentialité et les Conditions d'Utilisation de Google s'appliquent.