0

NOUVELLE EXCLUSIVITE ! Maison à rénover avec fort potentiel à Gelos

Gelos (64110)
Réf : VEVMA280006720

Et si votre futur chez-vous commençait par une feuille blanche ?

A seulement 20 minutes du centre ville de Pau, dans le secteur recherché de la Vallée Heureuse à Gelos, découvrez cette maison des années 70 nichée au coeur d'un environnement calme et verdoyant.

Un véritable havre de paix, entouré de nature, où tout est réuni pour donner vie à un projet unique.


Une maison à repenser entièrement selon vos envies :

Edifiée sur deux niveaux, elle offre une base idéale pour un projet familial, bi-famille ou même à vocation locative:

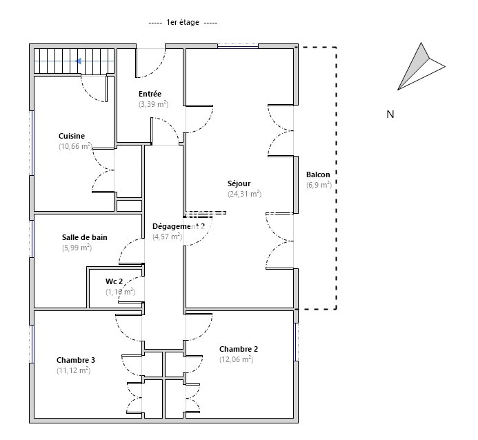
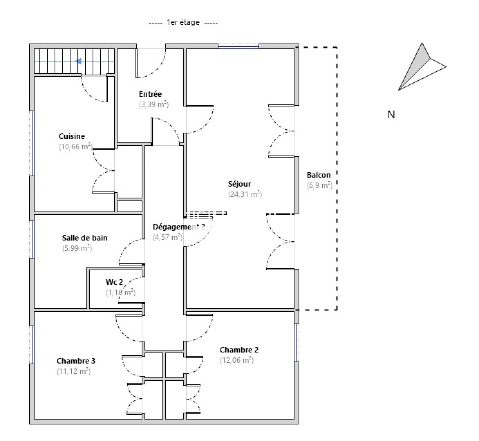
- A l'étage : entrée, salon-séjour lumineux, cuisine, 2 chambres, salle de bain et WC.

- Au rez-de-chaussée: un second espace de vie avec séjour-cuisine, une chambre et plusieurs annexes.


Implantée sur une parcelle de 2754m², cette propriété vous garantit un cadre de vie exceptionnel, avec de nombreuses possibilités d'aménagement.

Un garage complète l'ensemble.

Des travaux de rénovation globale sont à prévoir ( isolation, menuiseries, électricité, chauffage, assainissement) offrant l'opportunité de créer un lieu de vie entièrement personnalisé.

Que vous soyez en quête de votre future résidence principale, d'un projet familial ou d'un investissement à valoriser, ce bien représente une opportunité rare sur le secteur.


A découvrir sans tarder ! Contactez - nous pour une visite !

Emma VERGNES, LOG'ICI PAU : 06.40.41.08.28 ou pau@logici-immobilier.com

. Classe énergie : F ( 320 kWh/m²/an)

. Classe climat : F ( 70 kg Co2/m²/an)

Montant estimé des dépenses annuelles d'énergie pour un usage standard : entre 3420€ et 4650€ par an. Prix moyens des énergies indexés sur les années 2021/2022/2023 ( abonnements compris)

Les informations sur les risques auxquels ce bien est exposé sont disponibles sur le site Géorisques : www.georisques.gouv.fr


Les informations sur les risques auxquels ce bien est exposé sont disponibles sur le site Géorisques
Prix du bien 193 000 €
Pièce(s) 4
Chambre(s) 3

Caractéristiques du bien

Caractéristiques Valeurs
Code postal 64110
Surface habitable (m²) 123 m²
surface terrain 2 754 m²
Nombre de chambre(s) 3
Nombre de pièces 4
Nombre de niveaux 1
Nb de salle de bains 1
Cuisine Séparée
Mode de chauffage Gaz
Type de chauffage TRAD_TYPE_CHAUFF_CHAUDIERE
Format de chauffage Individuel
Interphone NON
Visiophone NON
Nombre de garage 1
Exposition Sud-Ouest
Année de construction 1972
Terrain arboré OUI

Infos financières

Caractéristiques Valeurs
Prix de vente honoraires TTC inclus 193 000 €

Bilans énergétiques

DPE GES
Ce bien vous intéresse ?
Fieldset par défaut
Fieldset par défaut
Validation

* Champs obligatoires

Contacter l'agence
Validation
Les informations recueillies sur ce formulaire sont enregistrées dans un fichier informatisé par La Boite Immo agissant comme Sous-traitant du traitement pour la gestion de la clientèle/prospects de l'Agence / du Réseau qui reste Responsable du Traitement de vos Données personnelles. La base légale du traitement repose sur l'intérêt légitime de l'Agence / du Réseau. Elles sont conservées jusqu'à demande de suppression et sont destinées à l'Agence / au Réseau. Conformément à la loi « informatique et libertés », vous disposez des droits d’accès, de rectification, d’effacement, d’opposition, de limitation et de portabilité de vos données. Vous pouvez retirer votre consentement à tout moment en contactant directement l’Agence / Le Réseau. Consultez le site https://cnil.fr/fr pour plus d’informations sur vos droits. Si vous estimez, après avoir contacté l'Agence / le Réseau, que vos droits « Informatique et Libertés » ne sont pas respectés, vous pouvez adresser une réclamation à la CNIL. Nous vous informons de l’existence de la liste d'opposition au démarchage téléphonique « Bloctel », sur laquelle vous pouvez vous inscrire ici : https://www.bloctel.gouv.fr Dans le cadre de la protection des Données personnelles, nous vous invitons à ne pas inscrire de Données sensibles dans le champ de saisie libre.
Ce site est protégé par reCAPTCHA, les Politiques de Confidentialité et les Conditions d'Utilisation de Google s'appliquent.
Ces biens peuvent vous intéresser