0

ANGAIS - Vente charmante béarnaise T4 avec garage attenant sur 550 m² de terrain

Angaïs (64510)
Réf : 1392JC

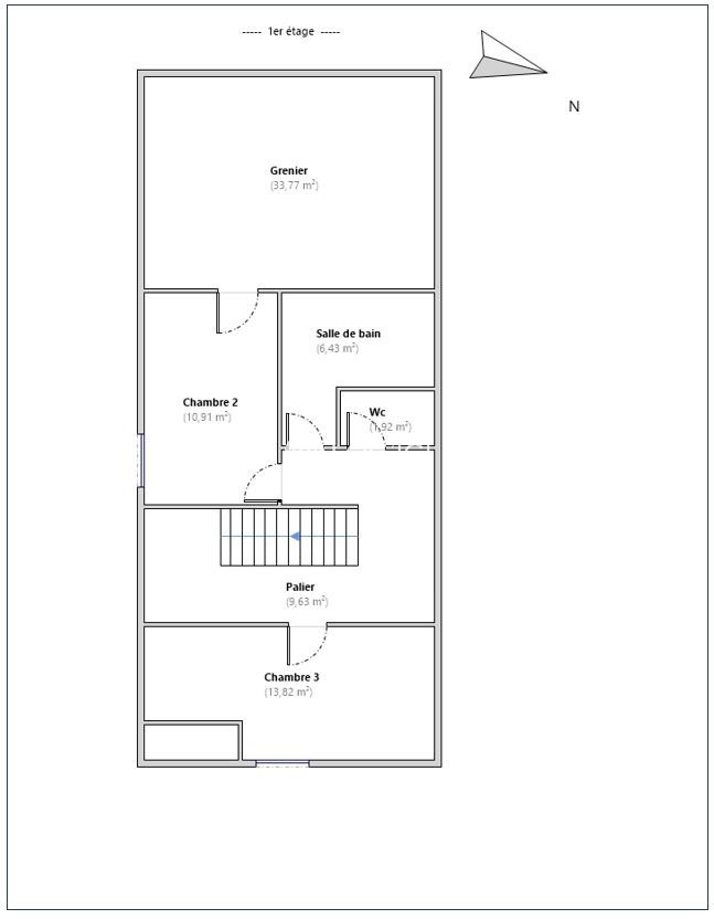
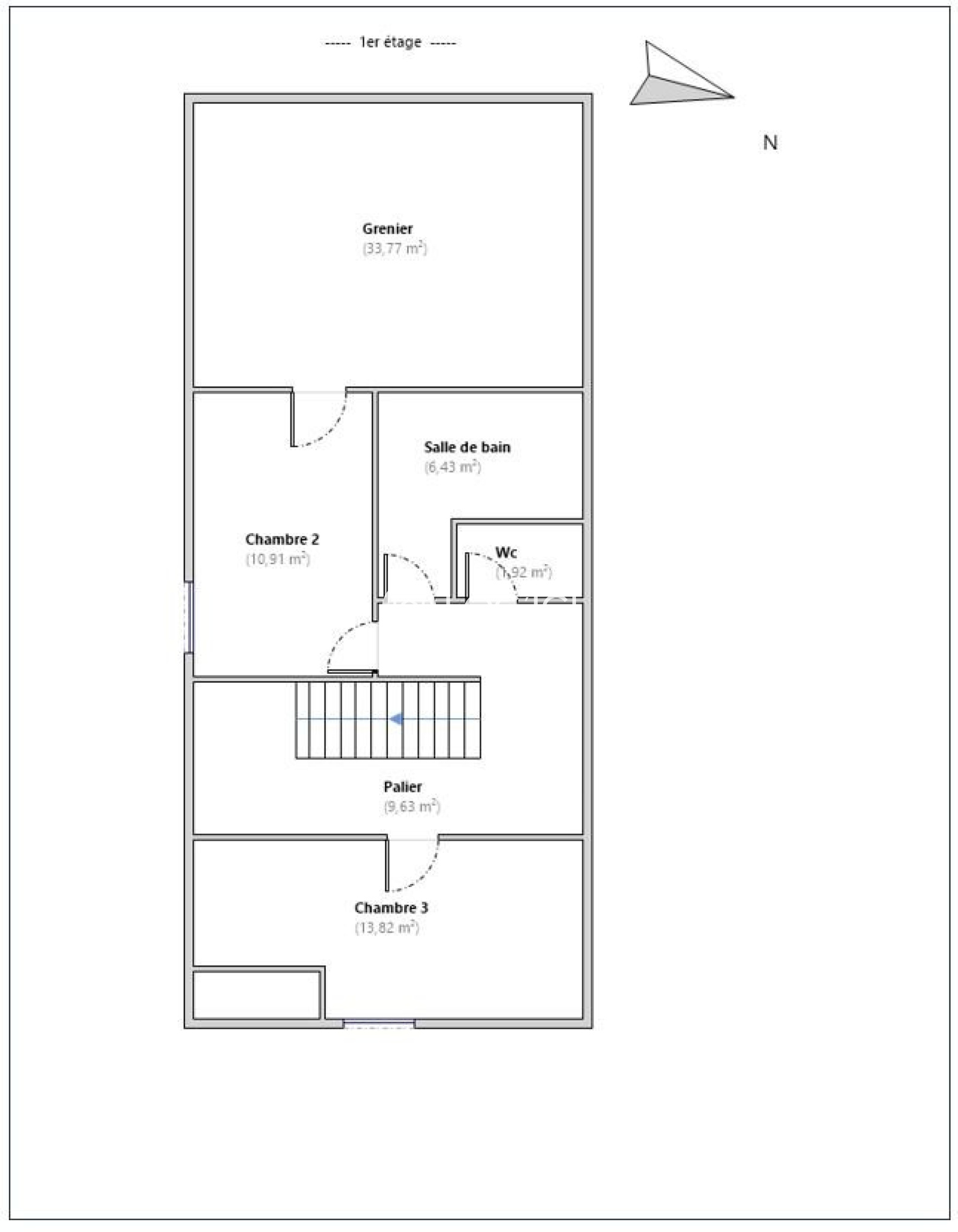
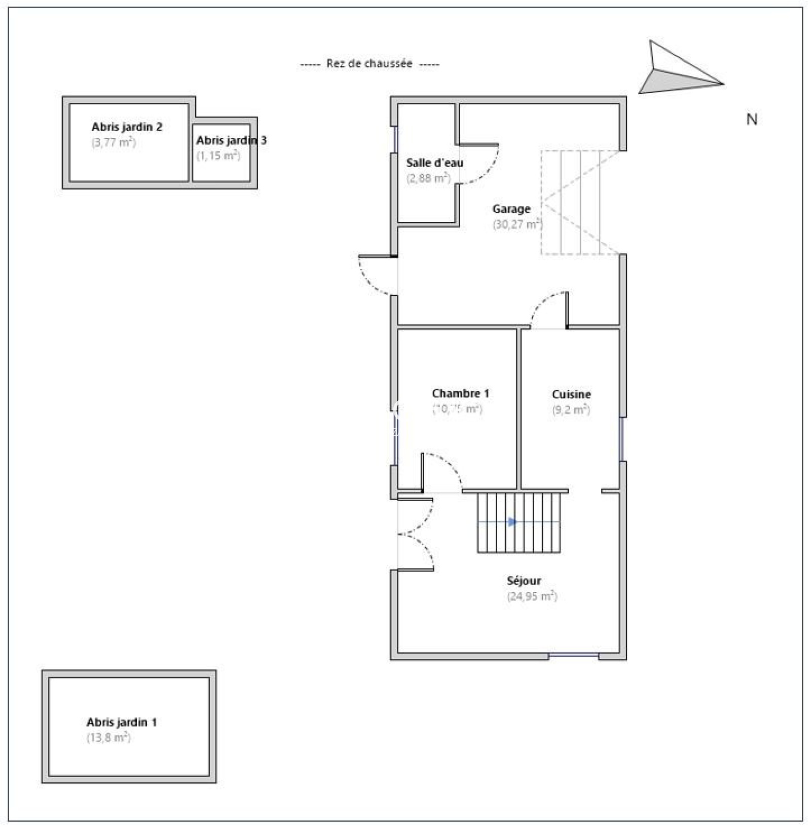
Située à mi-chemin entre Nay et Pau, cette jolie maison béarnaise vous séduira par son authenticité et son fort potentiel. Édifiée sur un terrain clos et joliment arboré de 550 m², elle offre un cadre de vie agréable et paisible, parfait pour une première acquisition ou un projet de rénovation. La maison se compose au rez-de-chaussée d'un salon-séjour agrémenté d'un poêle à bois, d'une cuisine séparée, ainsi que d'une chambre. À l'étage, un dégagement dessert deux chambres, une salle de bains et un WC séparé. Les + qui font la différence : - Garage attenant avec salle d'eau et WC, idéal pour un atelier ou un espace indépendant. - Combles aménageables offrant la possibilité d'agrandir la surface habitable. - Abri de jardin, pratique pour stocker outils et matériel de jardinage Des travaux de rénovation sont à prévoir pour révéler tout le potentiel de cette maison pleine de charme. Localisation stratégique, à quelques minutes de toutes commodités, dans un environnement calme tout en restant proche de l'axe Pau-Nay. Ne manquez pas cette opportunité ! Une vidéo de ce bien est disponible sur notre site www.logici-immobilier.com Référence : 1392JC Votre contact LOGICI NAY : Julie CAZAJOUS joignable au 06 46 63 32 73 ou au 05 33 74 05 05


Les informations sur les risques auxquels ce bien est exposé sont disponibles sur le site Géorisques
Prix du bien
Pièce(s) 4
Chambre(s) 3

Caractéristiques du bien

Caractéristiques Valeurs
Code postal 64510
Surface habitable (m²) 87,61 m²
surface terrain 505 m²
Surface loi Carrez (m²) 74,63 m²
Nombre de chambre(s) 3
Nombre de pièces 4
Nb de salle de bains 1
Nb de salle d'eau 1
Type de cuisine Equipée
Mode de chauffage Bois
Type de chauffage Poêle
Format de chauffage Individuel
Nombre de garage 1
Nombre de parking 2
Exposition Sud
Année de construction 1800
Quartier NAY
Terrain arboré OUI
Terrain Cloturé OUI
Raccordement eau OUI
Raccordement gaz OUI
Raccordement électricité OUI

Infos financières

Caractéristiques Valeurs
Les honoraires d'agence seront intégralement à la charge du vendeur  
Taxe foncière annuelle 86 €
Ces biens peuvent vous intéresser