0

Appartement T2 Entièrement Refait à Neuf au C?ur de Cauterets

Cauterets (65110)
Réf : 650096959
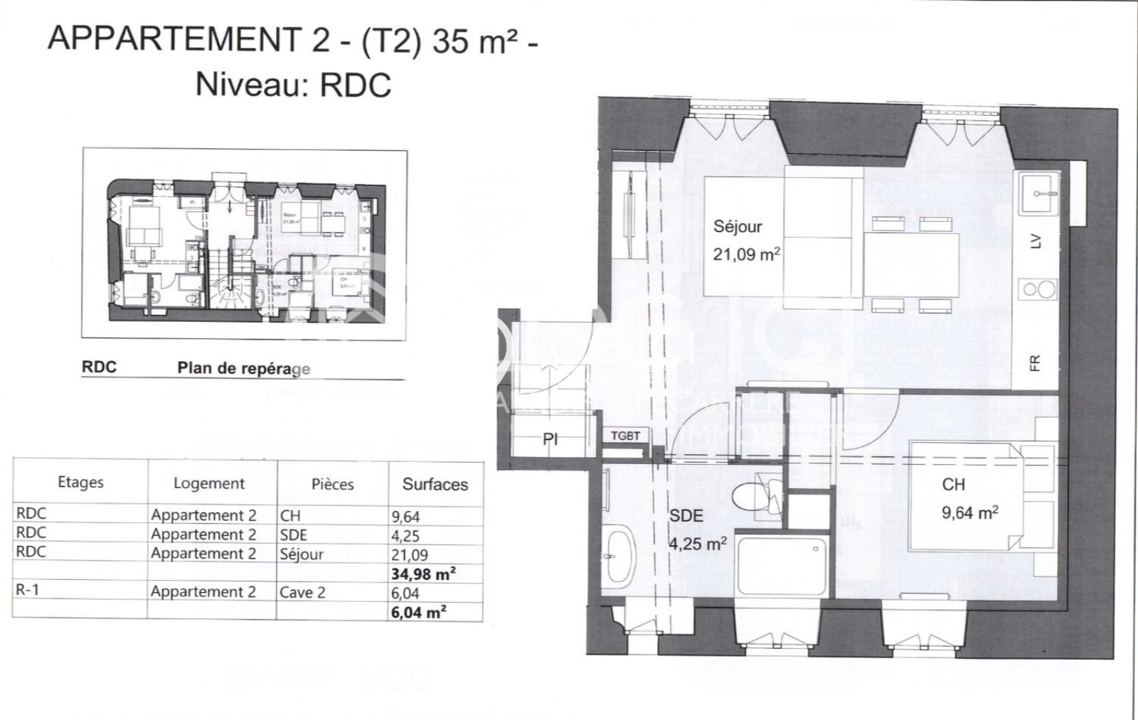
Découvrez ce superbe appartement T2 de 34.98 m2 loi carrez en RDC entièrement rénové, situé dans un immeuble de 6 appartements avec cave, au cœur du village de Cauterets. Son architecture épurée et contemporaine en fait un lieu de vie idéal. Proche des pistes de ski, des thermes, des boutiques locales. Cet appartement bénéficie d'une cuisine équipée de marque Perene ainsi que la salle d'eau, d'un chauffage électrique basse consommation. Stationnement à proximité. Livraison approximative en mai 2026. Ne manquez pas cette opportunité unique d'acquérir un bien d'exception dans un cadre montagnard enchanteur ! Pour plus d'informations, contactez-nous. Laure Barrois 0562348978 ou 0681957564
découvrir le bien
Prix du bien 163 968 €
Pièce(s) 2
Chambre(s) 1

Caractéristiques du bien

Caractéristiques Valeurs
Code postal 65110
Surface habitable (m²) 35 m²
Surface loi Carrez (m²) 34,98 m²
Nombre de chambre(s) 1
Nombre de pièces 2
Nb de salle d'eau 1
Mode de chauffage Electrique
Type de chauffage Autre
Format de chauffage AUTRE
Murs mitoyens -1
Cave OUI
Quartier LOGICI TARBES-IBOS

Infos financières

Caractéristiques Valeurs
Prix de vente 163 968 €
Les honoraires d'agence seront intégralement à la charge du vendeur  

Bilans énergétiques

DPE GES
Ce bien vous intéresse ?
Fieldset par défaut
Fieldset par défaut
Validation

* Champs obligatoires

Contacter l'agence
Validation
Les informations recueillies sur ce formulaire sont enregistrées dans un fichier informatisé par La Boite Immo agissant comme Sous-traitant du traitement pour la gestion de la clientèle/prospects de l'Agence / du Réseau qui reste Responsable du Traitement de vos Données personnelles. La base légale du traitement repose sur l'intérêt légitime de l'Agence / du Réseau. Elles sont conservées jusqu'à demande de suppression et sont destinées à l'Agence / au Réseau. Conformément à la loi « informatique et libertés », vous disposez des droits d’accès, de rectification, d’effacement, d’opposition, de limitation et de portabilité de vos données. Vous pouvez retirer votre consentement à tout moment en contactant directement l’Agence / Le Réseau. Consultez le site https://cnil.fr/fr pour plus d’informations sur vos droits. Si vous estimez, après avoir contacté l'Agence / le Réseau, que vos droits « Informatique et Libertés » ne sont pas respectés, vous pouvez adresser une réclamation à la CNIL. Nous vous informons de l’existence de la liste d'opposition au démarchage téléphonique « Bloctel », sur laquelle vous pouvez vous inscrire ici : https://www.bloctel.gouv.fr Dans le cadre de la protection des Données personnelles, nous vous invitons à ne pas inscrire de Données sensibles dans le champ de saisie libre.
Ce site est protégé par reCAPTCHA, les Politiques de Confidentialité et les Conditions d'Utilisation de Google s'appliquent.