0

BENEJACQ - Vente Maison T7 avec sous-sol complet

Bénéjacq (64800)
Réf : 1382JC

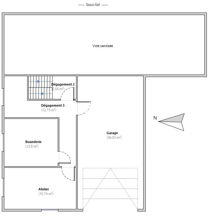
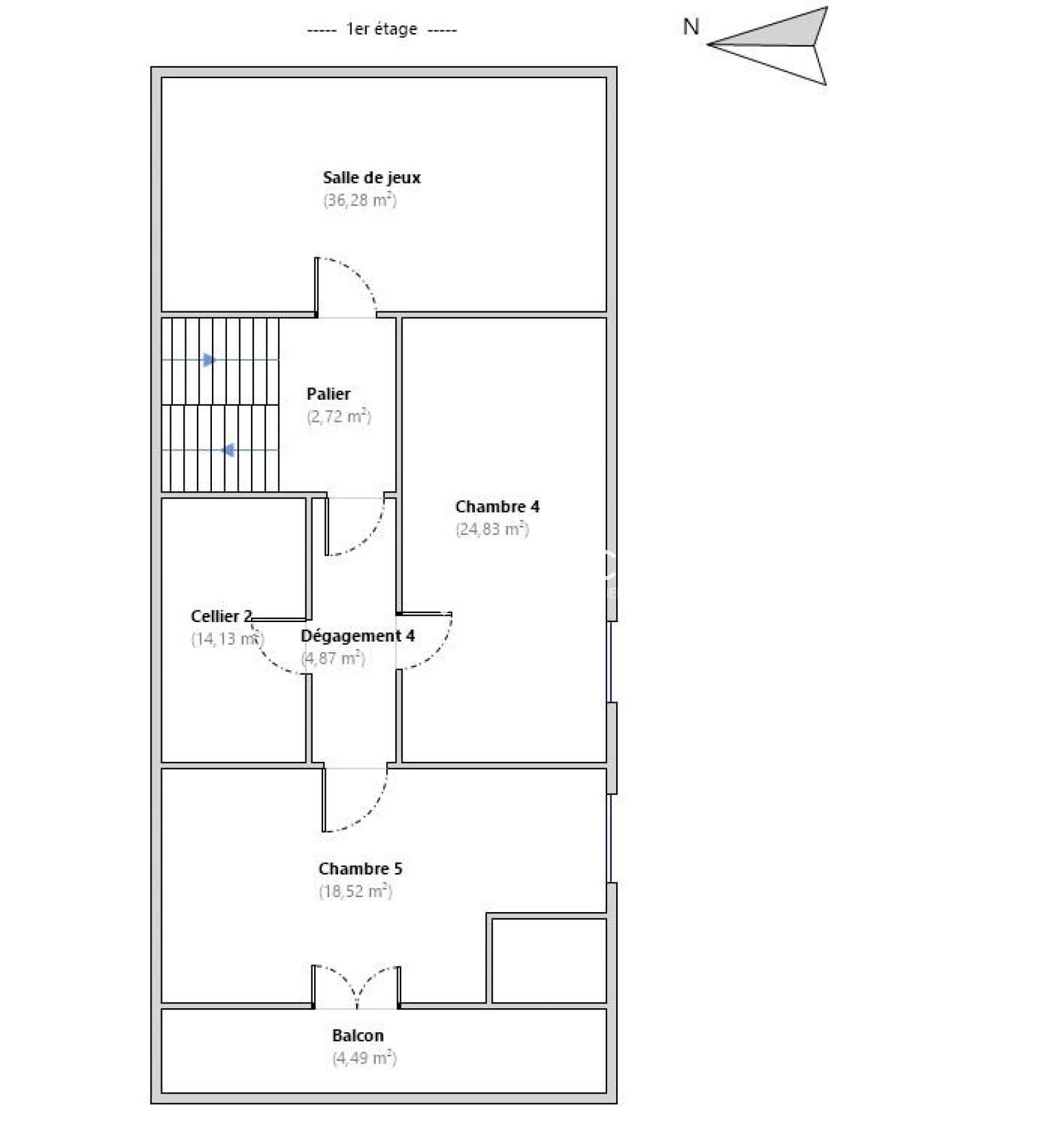
Située à proximité immédiate des commodités, dans un quartier paisible, venez découvrir cette maison traditionnelle des années 80, entièrement rénovée au rez-de-chaussée, avec des travaux d'amélioration énergétique déjà réalisés (isolations des combles, changement des menuiseries et pompe à chaleur). D'une surface généreuse, cette maison se compose de : - un sous-sol complet : véritable atout, il offre un grand garage, plusieurs espaces de rangement et de stockage, idéal pour une vie bien organisée. - au rez-de-chaussée rénové : une pièce de vie chaleureuse, une cuisine séparée, meublée et équipée, un coin nuit avec 3 chambres, une salle de bains ainsi que des WC séparés. - à l'étage : à rafraîchir selon vos goûts, vous trouverez 3 chambres mansardées spacieuses ainsi qu'une pièce supplémentaire permettant l'aménagement d'une seconde salle d'eau. De quoi créer jusqu'à 6 chambres au total, un bien rare sur le marché ! Le tout est édifié sur un terrain arboré de 1511 m², exposé plein Sud, parfait pour profiter des beaux jours en toute tranquillité : cette maison est idéale pour une grande famille. Bien rare par son potentiel, ses volumes, son sous-sol complet et son emplacement proche des services. Ne tardez pas à venir découvrir cette opportunité. Une vidéo de ce bien est disponible sur notre site www.logici-immobilier.com Référence : 1382JC Julie CAZAJOUS se charge de la vente de ce bien : vous pouvez la contacter au 06 46 63 32 73 ou au 05 33 74 05 05 LOGICI NAY


Les informations sur les risques auxquels ce bien est exposé sont disponibles sur le site Géorisques
Prix du bien
Pièce(s) 7
Chambre(s) 5

Caractéristiques du bien

Caractéristiques Valeurs
Code postal 64800
Surface habitable (m²) 116,07 m²
surface terrain 1 511 m²
Surface loi Carrez (m²) 191,53 m²
Nombre de chambre(s) 5
Nombre de pièces 7
Vue Dégagée
Nb de salle de bains 1
Type de cuisine Equipée
Mode de chauffage Bois
Type de chauffage Poêle
Format de chauffage Individuel
Balcon OUI
Terrasse OUI
Sous/sol OUI
Nombre de garage 1
Nombre de parking 1
Exposition Sud
Année de construction 1973
Quartier NAY
Terrain arboré OUI
Terrain Cloturé OUI
Raccordement eau OUI
Raccordement électricité OUI

Infos financières

Caractéristiques Valeurs
Les honoraires d'agence seront intégralement à la charge du vendeur  
Taxe foncière annuelle 1 144 €
Ces biens peuvent vous intéresser